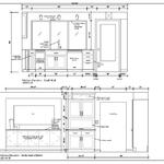
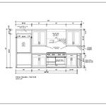
An idyllic setting made even better! This was a top to bottom renovation on the inside as well as a significant redesign of the front of the house. Karen Kjobech Design created the conceptual design and many of the detailed drawings for everything from the deck to the kitchen to the fireplace. General Contractor – Timberwood Construction
“We especially appreciate the detail and thought that Karen puts into each aspect of the house design and alerting us to potential problems or pitfalls that we may not have recognized” – Client





















